Wasserski- und Tauchbasis Steg
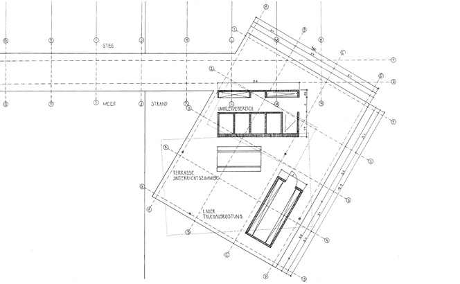
Der Steg verbindet eine Wasserskistation auf dem Wasser und Tauchbasis am Strand. Der Entwurf basiert auf einer reinen Holzkonstruktion. Die imposant verdrehte Dachkonstruktionen steht im Mittelpunkt. Die lamellenartige Dachdeckung schafft nebem dem funtionellen Schattenspender auch ein imposantes Spiel von Licht und Schatten. Unterschiedliche Raumqualitäten und Zonierungen entstehen durch die unterschiedliche Höhe des Daches.
Grundriss Land
| ba 2 | | Prof. W. Kergassner | Baukonstruktion |
| Team | | E. Böhmer |
