Escuela Urbana
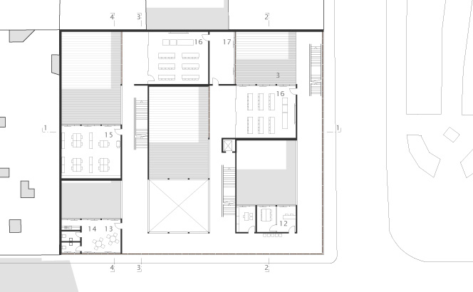
12 Verwaltung
13 Lehrerbereich
14 Sanitärbereich Lehrer
15 Lehrerarbeitsplätze
16 Fachklasse Naturwissenschaften
17 Vorbereitungsraum Naturwissenschaften
Modellphoto
| ma4 | | Prof. Prof. h.c. H.Bühler | Entwerfen |
| | Prof. M.Schanné | Baukonstruktion | |
| | Masterthesis |
